126 Phillip Street<br/>

126 Phillip Street
Sydney, Australia

126 Phillip Street, the home of Deutsche Bank in Sydney, is a 37 level super premium office tower constructed on the corner of Phillip and Hunter Streets, Sydney, with commanding and unrestricted views of Sydney Harbour and the Botanical Gardens. Its distinctive roof feature adds to the iconic city skyline extending along the eastern edge of the city.

  • 43,000 square metres of office space along with street level retail facilities and underground car parking
  • Design and construction by Bovis Lend Lease

 

 

 

Location
Main Application
Projects
Project participants
Customer: Bovis Lend Lease

The Project

Impressions from the project process
Simon Simoes,<br/>Site Foreman<br/>Wideform<br/>Constructions P/L
Simon Simoes,<br/>Site Foreman<br/>Wideform<br/>Constructions P/L
Simon Simoes
Site Foreman
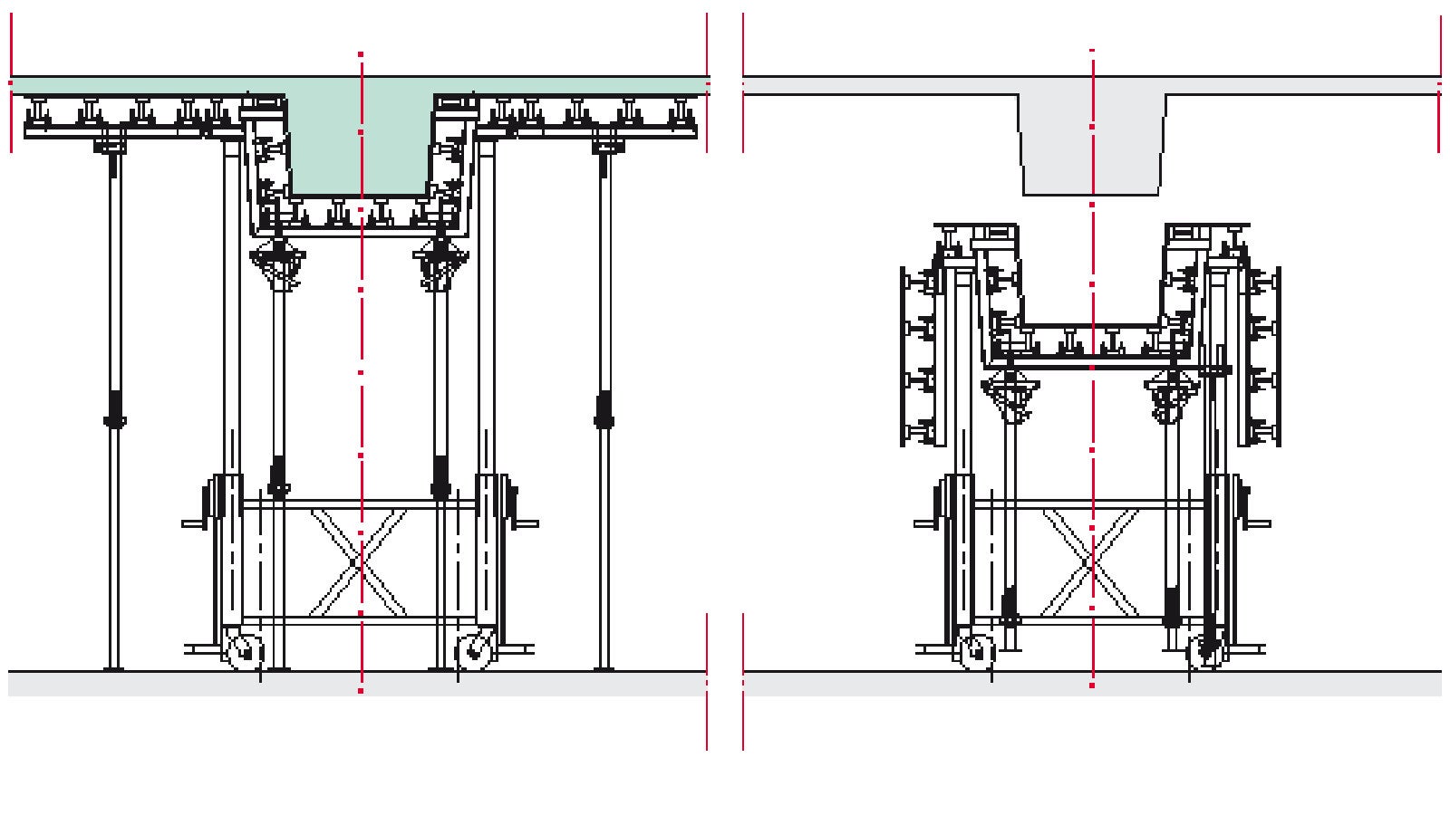
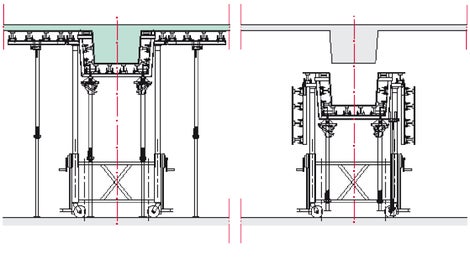
PERI's self-climbing screens in conjunction with slab and column formwork enabled us to quickly obtain our four days per floor structural cycle. The Automatic Climbing System which incorporated the column and beam formwork, provided a safe working area for various trades in every situation. PERI's engineered solutions allowed the systems to be quickly mastered and enabled tireless and safe use.

Are you working on a project like this?

Contact us – we will be happy to help you.
Contact us – we will be happy to help you.
126 Phillip Street<br/>
126 Phillip Street<br/>